The Dagdale | Plot 1 , Killamarsh, Sheffield
£599,950
Incentives available to make your move easier, including stamp duty paid on selected plots. Find out more about the Personalised Incentives Package we can build for you.
The Dagdale is a stunning 5-bedroom detached home offering exceptional space, style, and comfort. With a detached garage and some of the best views in the development, this home is designed for luxurious family living. Inside, generous living areas, a modern open-plan kitchen diner, and beautifully finished bedrooms provide ample room for relaxation and entertaining. The master suite offers added privacy with its own en-suite and dressing area, while additional double bedrooms ensure space for family, guests, or a home office. Perfectly positioned to take advantage of its enviable outlook, the Dagdale blends contemporary design with an unbeatable setting.
- Fantastic views
- Master suite with private ensuite and dressing area
- Open plan kitchen and dining area with french doors leading to the garden
- Detached garage
- Solar panels built in as standard for eco-friendly living
- Neff fridge freezer, oven & dishwasher included as standard
- NHBC 10 year warranty
- High level insulation throughout the house
- Convenient car charging point included
- Energy efficient triple glazed windows
- Extensive range of customisation options
Inside, a stylish feature hallway opens into a spacious, open-plan kitchen, dining, and living area. French doors seamlessly connect the indoors with the garden, flooding with natural light—an ideal space for the whole family to unwind and enjoy.
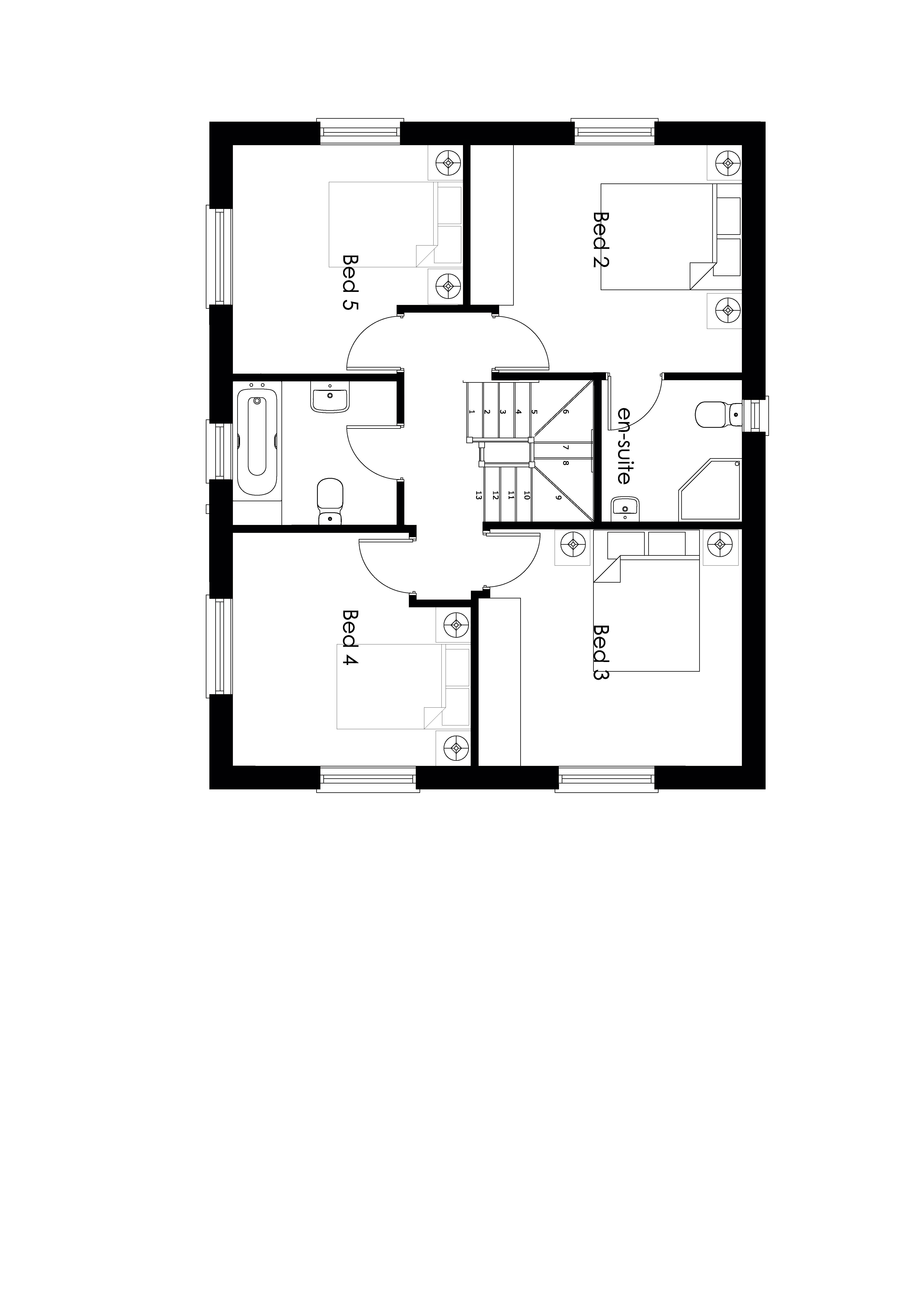
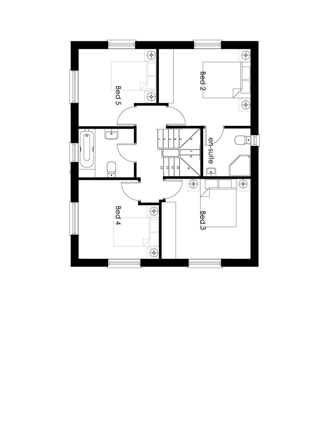
The first floor offers four well-proportioned double bedrooms leading off the landing. One bedroom benefits from its own private en-suite, with a separate family bathroom for added convenience.
On the second floor, a luxurious master suite awaits. This expansive bedroom includes a private en-suite, a dressing room, and fitted wardrobes tailored to your taste.
Welcome to Gongoozlers Walk—where modern comfort meets eco-conscious design. Each home features solar panels, triple-glazed windows, high-level insulation, water-waste heat recovery systems, and electric car charging points to ensure year-round energy efficiency. With a 10-year NHBC warranty, your investment is protected. Our commitment to biodiversity includes hedgehog highways, integrated bird and bat habitat bricks, and wildlife-friendly open spaces. Discover sustainable living at Gongoozlers Walk, where innovation and environmental responsibility come together beautifully.
Floor Plans
Ground Floor
|
Room |
Size (mm) |
Size (feet/inches) |
|
Lounge |
7,215 x 3,186 |
23’6” x 10’5” |
|
W/C |
1,024 x 1,471 |
3’4” x 4’8” |
|
Store |
780 x 598 |
2’5” x 1’9” |
|
Hall |
2,005 x 3,314 |
6’5” x 10’8” |
|
Kitchen/Dining Area |
3,628 x 7,215 |
11’9” x 23’6” |
|
Utility Area |
1,826 x 1,957 |
5’9” x 6’4” |
First Floor
|
Room |
Size (mm) |
Size (feet/inches) |
|
Bedroom 2 |
3,261 x 3,887 |
10’6” x 12’7” |
|
En suite |
2,037 x 2,033 |
6’6” x 6’6” |
|
Bedroom 3 |
3,392 x 3,775 |
11’1” x 12’3” |
|
Bedroom 4 |
3,346 x 3,416 |
10’9” x 11’2” |
|
Bedroom 5 |
3,279 x 3,303 |
10’7” x 10’8” |
|
Bathroom |
2,065 x 2,327 |
6’7” x 7’6” |
|
Landing |
4,075 x 1,268 |
13’3” x 4’ |
Upper Floor
|
Room |
Size (mm) |
Size (feet/inches) |
|
Master Bedroom |
8,840 x 6,188 |
29’0” x 20’3” |
|
En suite |
3,393 x 2,430 |
11’1” x 7’9” |
|
Landing |
2,012 x 878 |
6’6” x 2’8” |
|
Store |
780 x 598 |
2’5” x 1’9” |
* = largest dimension These dimensions are accurate to within +/-50mm. They are not intended to be used for carpets sizes, appliance spaces or items of furniture.
View your new home on the site plan
Discover a fresh, exciting approach to housebuilding. Our new build houses for sale in Killamarsh, Sheffield, are designed to feel warm, welcoming, and full of character - places you’ll be proud to call home and genuinely happy to live in.
Please note: This plan acts as a general description only. W.Redmile & Sons Ltd reserve the right to vary all aspects without notice.
View Location
An exceptional place to call your own
Development Details
Gongoozlers Walk is fondly named after those who enjoy watching barges on the nearby waterways and taking in the peaceful scenery that surrounds the development. This thoughtfully planned development features a selection of stylish, spacious and energy-efficient 3, 4, and 5-bedroom homes, designed with modern family life in mind.
Located in the picturesque village of Killamarsh, the development offers the perfect balance of historic charm and everyday convenience. With easy access to local shops, schools, leisure facilities, and excellent transport links, Gongoozlers Walk provides everything you need for comfortable, connected living.
Local Amenities
Surrounded by open countryside, there’s a multitude of ways for children and adults to enjoy the outdoors. Walking and cycling trails are right on your doorstep at Rother Valley Country Park. If you're looking for a splash, the water sports centre has you covered!
Enjoy shopping in the city? Dining out or a few drinks with friends? Take a 20-minute drive into Sheffield City centre or a 45-minute drive into Leeds, where you’ll find a wide range of big-name shops, restaurants, cafes, and bars to suit all tastes.
Here are some of our favourite local amenities:
- Crystal Peaks Shopping – 11 minute drive
- Gulliver’s Valley Theme Park – 7 minute drive
- Godfrey's Garden Centre – 5 minute drive
- Bolsover Castle – 19 minute drive
- Peak District – 45 minute drive
- Guzzle Micro-pub – 6 minute walk
- The Beehive Pub and Kitchen – 7 minute drive
- Rother Valley Golf Centre - 4 minute drive
- Aston Hall Cricket Club – less than 10 minute walk
- Aston Springs Farm – 5 minute walk
- Kiveton Community Woodland (Buggy friendly!) – 10 minute drive
- A host of additional restaurants, takeaways, and carveries locally
Transport
By Car
Gongoozlers Walk is easily accessible by car from Sheffield, Chesterfield, and surrounding areas.
- From Sheffield (approx. 20 minutes): Take the A6102 and B6053.
- From Chesterfield (approx. 25 minutes): Head north via the A61 and B6052. Free parking is available on-site during your visit.
- M1 is just 4 miles away.
By Bus
The area is served by local bus routes, including:
Killamarsh is served by several bus routes operated by Stagecoach and TM Travel, connecting Gongoozlers Walk to surrounding areas:
- Route 66 - Killamarsh to Sheffield (every 20-30 mins during peak hours)
- Route 218 - Killamarsh to Chesterfield
- Route 32 - Local service covering Killamarsh and nearby villages
- Bus Stops: The nearest stops to Gongoozlers Walk are on Main Road, less than 5 minutes’ walk away.
- Timetable Info: For up-to-date schedules and service alerts, visit Stagecoach Bus or TM Travel
By Train
The nearest train stations are:
- Woodhouse Station (15 mins by taxi)
- Chesterfield Station (25 mins by car)
- Halfway Park and Ride Tram Stop (6 mins by car)
By Foot & By Bike
Gongoozlers Walk is adjacent to scenic canal-side paths, perfect for walking or cycling. Cycle racks are available on-site.
Taxi & Ride-Sharing
- Local taxi companies such as Killamarsh Taxis provide prompt and reliable service.
- Ride-sharing apps like Uber and Bolt are also operational in the area, providing flexible transport options around the clock.
Schools
Primary Schools
- Killamarsh Infant and Nursery School
Sheffield Road, Killamarsh, S21 1DY
Ages: 3–7 | Ofsted: Good
A welcoming and nurturing environment focused on early development. - Killamarsh Junior School
Stanley Street, Killamarsh, S21 1EL
Ages: 7–11 | Ofsted: Good
Emphasises academic progress and a strong school community. - St Giles CE Primary School (Eckington)
Church Street, S21 4EF (10 mins by car)
Church of England | Ofsted: Good
Known for excellent pastoral care and community engagement.
Secondary Schools
- Outwood Academy Valley
Valley Road, Worksop, S81 7EN (20–25 mins by car)
Ofsted: Outstanding
High-achieving academy with excellent GCSE performance. - Westfield School (Chorus Education Trust)
Eckington Road, Sheffield, S20 1HQ (10–15 mins by car)
Ofsted: Requires Improvement (with improving results)
Focus on student leadership, extracurriculars, and academic support.
Nurseries & Pre-Schools
- Busy Bees at Killamarsh
Sheffield Road, Killamarsh
Full and part-time childcare available
Highly rated for child development programs and staff friendliness.
Request a Callback
Value for money and a home to be proud of.